當需要排出管道內的氣體時,應逆時針方向旋轉閥桿,使其閥桿連同閥門上升,使管道內的空氣在水的壓強作用下進入體腔內,并從排氣嘴排出,隨之管道內的水充滿體腔內,使浮球在水的浮力作用下,向上移動將排氣嘴堵塞,達到自行密封,管道在正常行中,水中的空氣在壓強的作用下,不斷排入排氣閥的體腔上部,迫使浮球下降,離開原來密封位置,這時空氣又從排氣嘴排出,隨之,浮球又恢復到原來位置自密封,因此,排氣閥在正常工作中閥門始終是開著的,浮球不斷重復上述動作,空氣不斷排出,當需要檢修或清掃體腔時,應將閥門關閉。本排氣閥,順時針旋轉閥桿時為關閉。
產品特點
1、能夠排除管道中的氣體,減少阻力節約能源。
2、當管道負壓時,本產品能快速自動吸入空氣防止管道破裂。
3、排氣能力是普通雙孔排氣閥的多倍。
4、浮球托架為不銹鋼,使用壽命長,安全可靠。
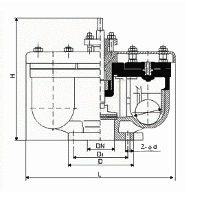
連接尺寸
|
型號 |
公稱通徑 |
主要尺寸(mm) |
|||||||
|
D |
D1 |
D2 |
L |
Z-φd |
介質 |
閥體材料 |
|
||
|
QB2-10 |
40 |
145 |
110 |
85 |
430 |
4-φ18 |
水 |
鑄鐵 |
|
|
QB2-10 |
50 |
160 |
125 |
100 |
430 |
4-φ18 |
水 |
鑄鐵 |
|
|
QB2-10 |
75 |
195 |
160 |
135 |
470 |
4-φ18 |
水 |
鑄鐵 |
|
|
QB2-10 |
100 |
215 |
180 |
155 |
500 |
4-φ18 |
水 |
鑄鐵 |
|
|
QB2-10 |
150 |
280 |
240 |
210 |
540 |
8-φ20 |
水 |
鑄鐵 |
|
|
QB2-10 |
200 |
335 |
295 |
265 |
700 |
8-φ20 |
水 |
鑄鐵 |
|