產品概述
自力式閥前壓力調節閥是由閥體和平衡彈簧等部件組成,無需外加能源,利用被調介質自身壓力為動力源引入執行機構推動彈簧控制閥芯位置,改變兩端的壓差和流量,使閥前壓力穩定,具有動作靈敏,密封性好,壓力設定點波動小。廣泛應用于氣體、液體及蒸汽介質減壓、穩壓的自動控制。
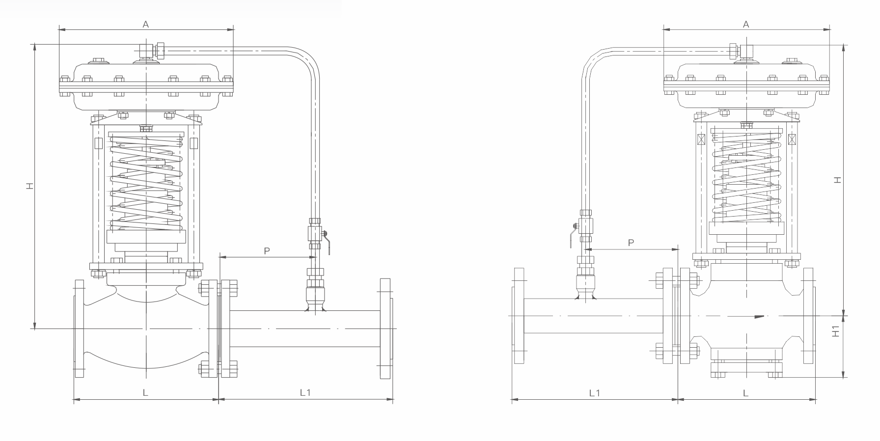
| 公稱通徑(DN) | 20 | 25 | 32 | 40 | 50 | 65 | 80 | 100 | 125 | 150 | 200 | ||
| L | PN16、40 | 150 | 160 | 180 | 200 | 230 | 290 | 310 | 350 | 400 | 480 | 600 | |
| PN64 | 230 | 230 | 260 | 260 | 300 | 340 | 380 | 430 | 500 | 550 | 650 | ||
| B | 233 | 332 | 373 | 522 | 673 | 980 | 1200 | ||||||
| H |
壓力調節范圍 (MPa) |
15~140 | 475 | 520 | 540 | 710 | 780 | 840 | 880 | 915 | |||
| 120~300 | 455 | 500 | 520 | 690 | 760 | 800 | 870 | 880 | |||||
| 280~500 | 450 | 490 | 510 | 680 | 750 | 790 | 860 | 870 | |||||
| 480~1000 | 445 | 480 | 670 | 740 | 780 | 850 | 860 | ||||||
| 600~1500 | 445 | 570 | 600 | 820 | 890 | 950 | 950 | 1000 | |||||
| 1000~2500 | 445 | 570 | 600 | 820 | 890 | 950 | 950 | 1000 | |||||
| A |
壓力調節范圍 (MPa) |
15~140 | φ282 | φ308 | |||||||||
| 120~300 | φ232 | ||||||||||||
| 280~1000 | φ196 | φ196 | φ282 | ||||||||||
| 600~2500 | φ85 | φ96 | |||||||||||
| 大約重量(Kg) | 26 | 37 | 42 | 72 | 90 | 114 | 130 | 144 | 180 | ||||